Gabriele Riesner Architektin
Gabriele
Riesner
Architektin

Umbau eines Wohnhauses
Ort:Melzow, Uckermark
Bauherr:Privat
Fertigstellung:2025
Leistungsphasen:1-8
Fotos:André Baschlakow
Bestand
Melzow
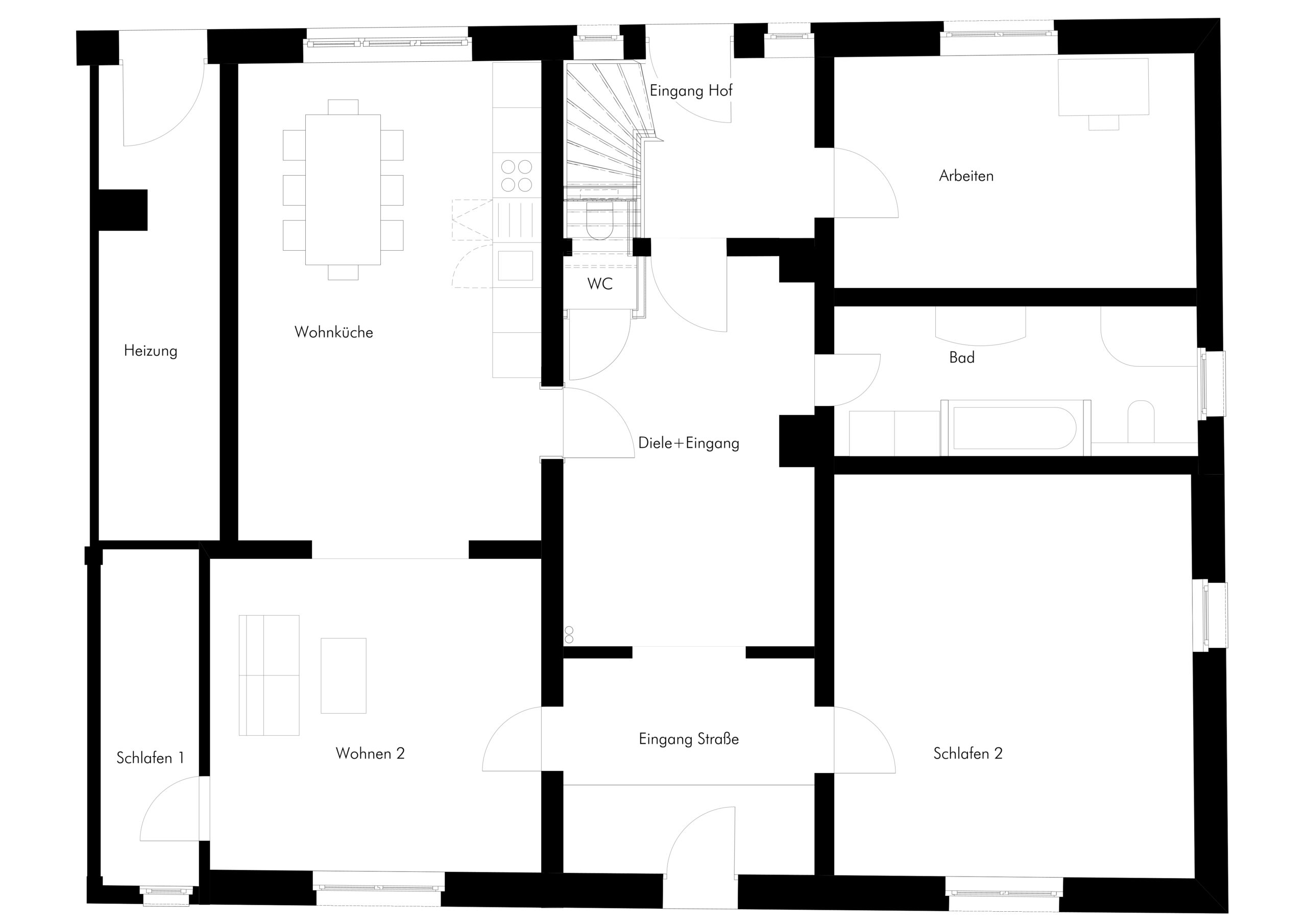
Das genaue Baujahr des Wohnhauses ist nicht bekannt. Die historische Substanz der angrenzenden Gebäudeteile deutet darauf hin, dass der Ursprung möglicherweise bis ins 13. Jahrhundert zurückreicht. Das Gebäude verfügt über ein Vollgeschoss, ein teilweise ausgebautes Dachgeschoss und ist nicht unterkellert. Die Außenwände bestehen aus 34–46 cm starkem Ziegelmauerwerk.
Im ersten Bauabschnitt wurden die Modernisierungen der 1990er Jahre (Trockenbau, abgehängte Decken und PVC- Fußböden) rückgebaut, ursprüngliche Öffnungsgrößen wiederhergestellt und alle Türen und Fenster erneuert. Die Raumaufteilung wurde überarbeitet, um eine beidseitige Lichtzufuhr in den Wohnräumen zu gewährleisten. Zudem wurden Deckenbalken freigelegt, die Fußbodenaufbauten inklusive Dämmung erneuert und die innenliegende Treppe restauriert.
In einem zweiten Bauabschnitt sind die Erneuerung des Dachs mit Dämmung sowie eine Fassadendämmung vorgesehen.









Neueste Kommentare