Gabriele Riesner Architektin
Gabriele
Riesner
Architektin

Modernisierung Revierförsterei
Projekt:Revierförsterei Wannsee
Ort:Berlin-Steglitz
Bauherr:Berliner Forsten Land Berlin
Fertigstellung:2022
Leistungsphasen:1-8
Fotos:André Baschlakow
Revierförsterei Wannsee
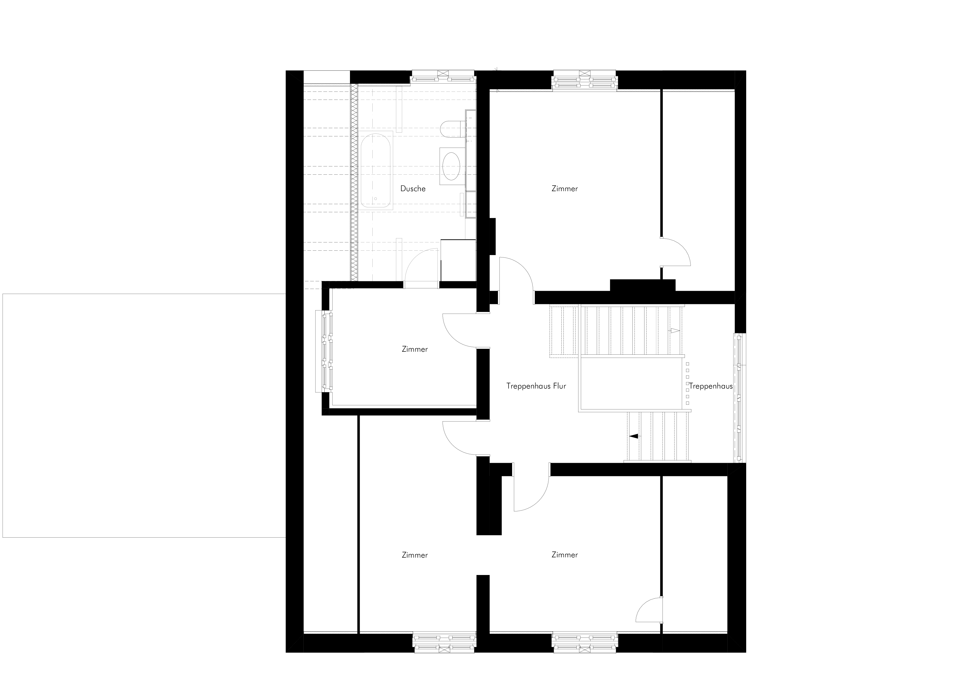
Die Revierförsterei Wannsee am Kronprinzessinnenweg 60 in Berlin wurde 1914 in Massivbauweise mit einer Sichtfassade aus Ziegelsteinen errichtet und ist bis heute weitgehend im ursprünglichen Zustand erhalten. Eine Besonderheit des im Historismus errichteten Gebäudes sind die im 45°-Winkel stehenden Zickzackstreifen an allen drei Giebelseiten.
Im Rahmen der energetischen Sanierung wurde das Ziegelmauerwerk gereinigt und mit Kalkmörtel neu verfugt. Das Steildach erhielt eine neue Ziegeleindeckung und eine Dämmung aus Holzweichfaser. Dachkasten, Gauben, Schornsteinanschlüsse sowie die Entwässerung wurden erneuert. Die Terrasse wurde hinsichtlich Gefälle und Entwässerung überarbeitet, um Feuchtigkeitsschäden zu vermeiden.
Im Inneren wurden die beiden Bäder vollständig erneuert. Die Holzdielenböden wurden aufgearbeitet. Der Terrazzoboden im Erdgeschoss wurde instandgesetzt, geschliffen und versiegelt. Alle Oberflächen erhielten einen diffusionsoffenen Anstrich, Fenster, Türen und Heizkörper wurden überarbeitet.













Neueste Kommentare